EN
Lager

Repslagarevägen 3, Hagalund

Eget hus med lagerlokal i växande Hagalund

Lokalinformation

Nu har du möjlighet att hyra ett eget hus med stor lagerlokal och lastkaj. Byggnaden från 1938 har genom åren huserat allt från en konfektyrfabrik till ett bokbinderi. Fastigheten ligger i expansiva Hagalunds arbetsplatsområde, nära den växande Hagastaden. Läget är strategiskt nära innerstan och E4:an och den kommande tunnelbanestationen Södra Hagalund. Ett antal p-platser ingår. Tillträde omgående.

Planlösning

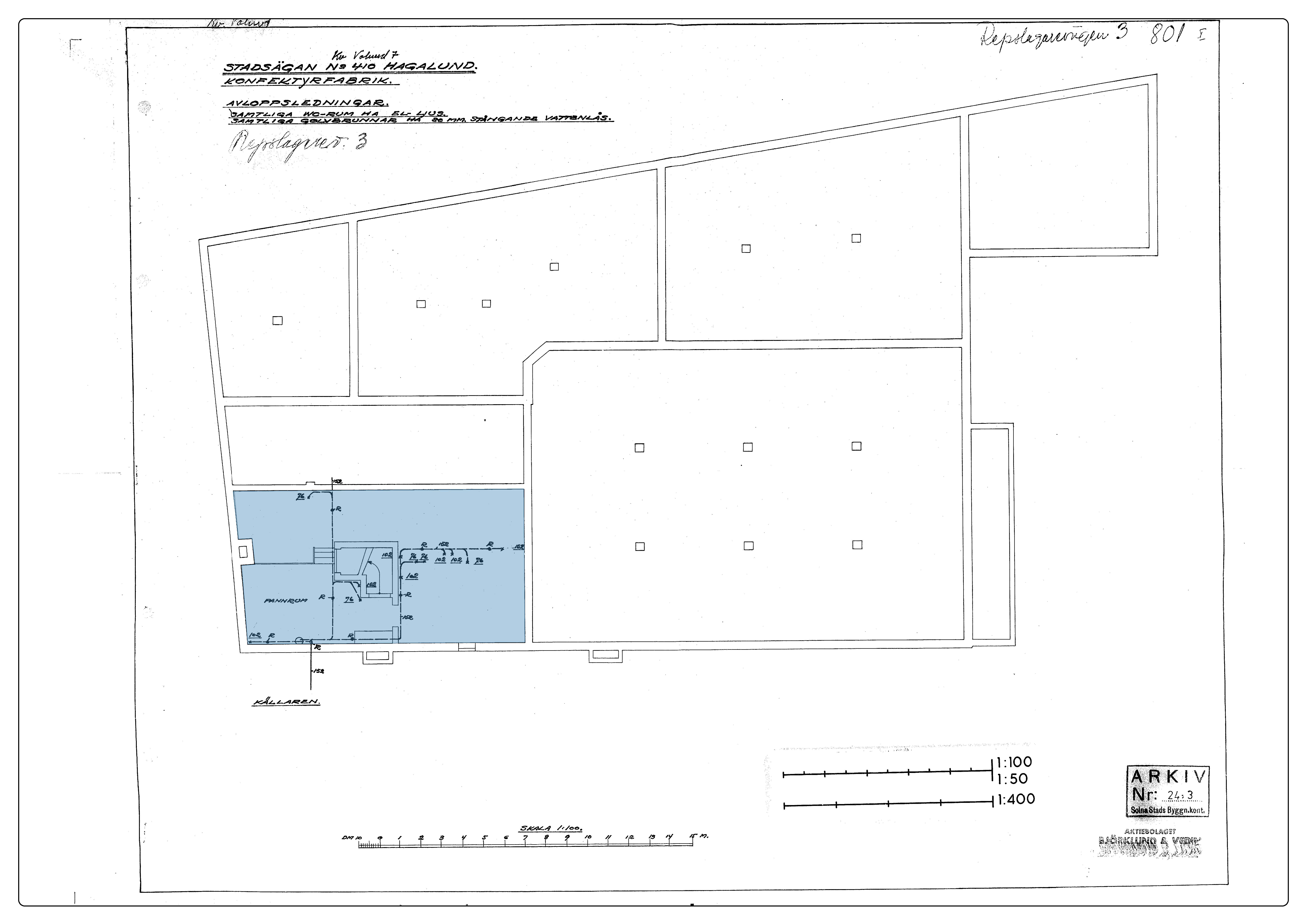
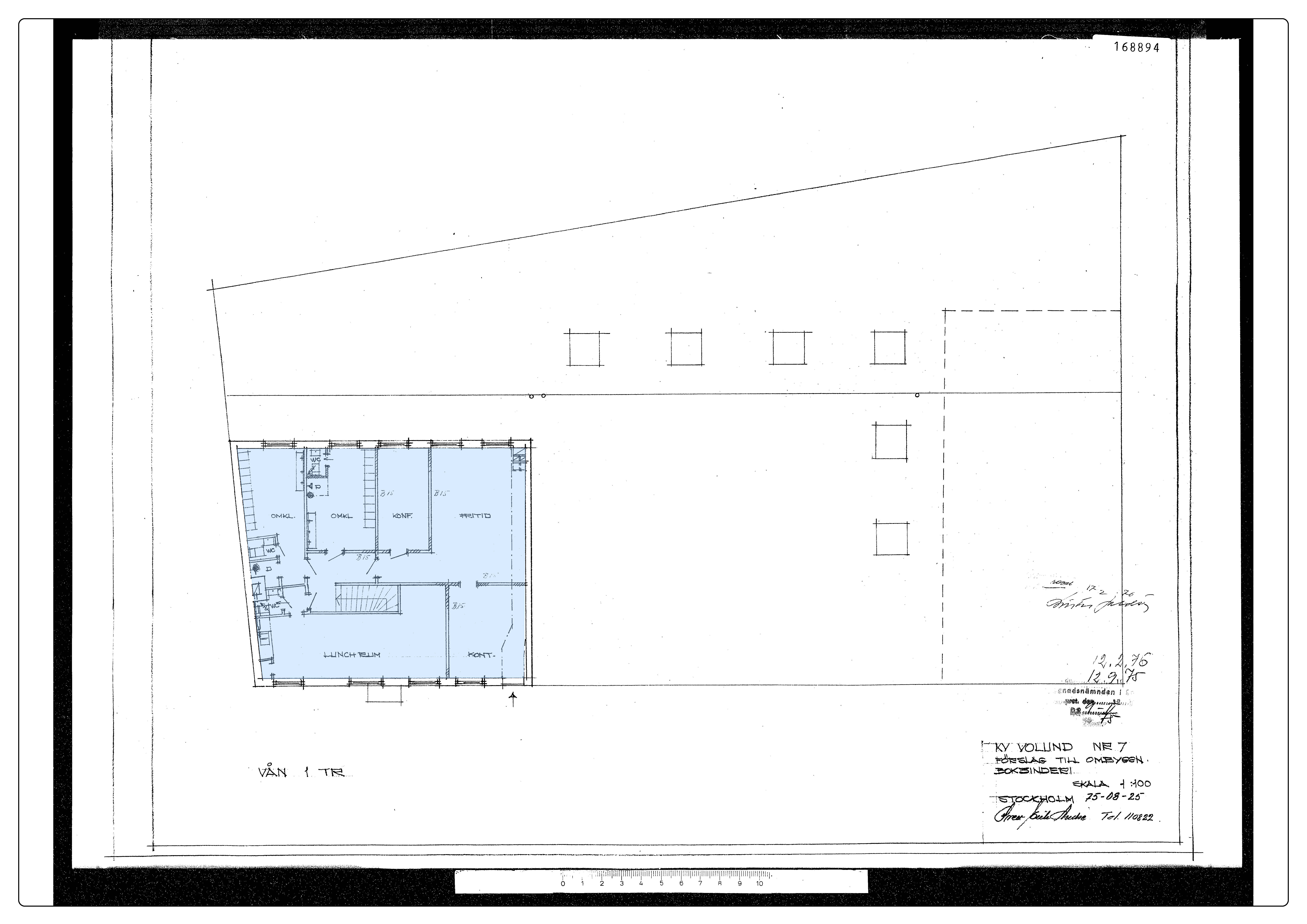
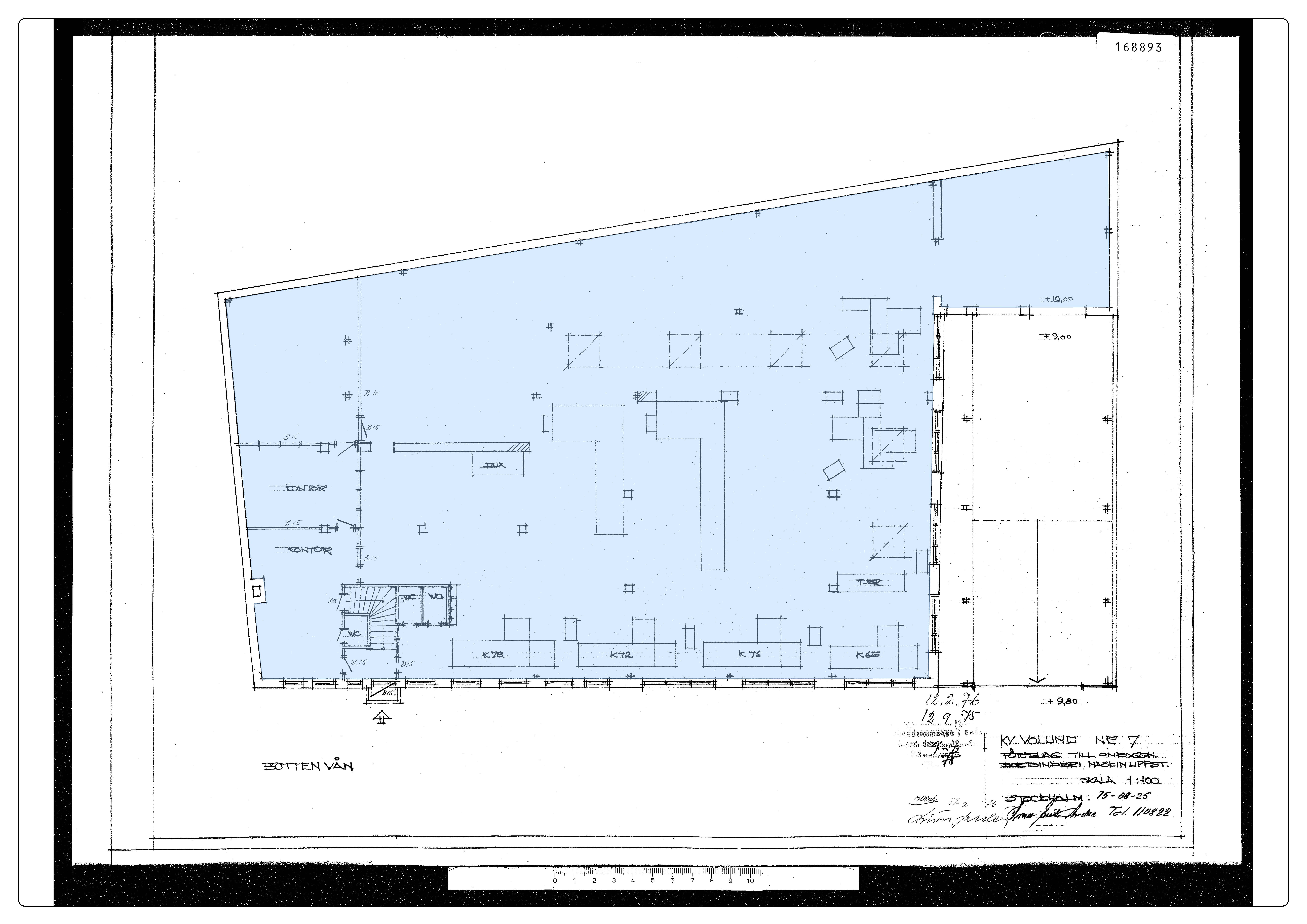
Huset med två våningar omfattar totalt 1096 kvm. Entréplanet består till huvuddel av en rymlig och flexibel lagerlokal med egen lastkaj, men även kontorsplatser. Den övre våningen erbjuder ytterligare kontor, mötesrum, omklädningsrum med duschar samt gemensamma ytor för umgänge och lunchraster. Lokalens generösa takhöjd om 3 4 meter skapar en ljus och inbjudande atmosfär.

Bekvämligheter

  • Omklädningsrum
  • Lastkaj
  • Parkering

Fakta om lokalen

Adress: Repslagarevägen 3 Byggår: 1938
Area: 1 096 kvm Område: Hagalund
Typ: Lager Våningsplan:
Kommun: Solna

Planritning

Området

Service

I området finns en lunchrestaurang och några snabbmatskiosker. McDonalds finns på andra sidan Solnavägen, där även bensinstationer finns. Matbutik finns på några minuters gångväg i Hagalund. I området finns flera proffsbutiker för bland annat el, färg och verktyg. Ett populärt klättercenter finns även. All övrig service finns på bekvämt avstånd i Solna centrum.

Omgivning

Fastigheten är strategiskt belägen i Hagalunds arbetsplatsområde, nära Stockholms innerstad. Det tar ca 10 15 minuter att cykla till Odenplan. Idag rymmer området mestadels kontorshus men lättare industri- och lagerbyggnader finns också. Strax intill byggs nu Hagastaden. Närheten till Karolinska Sjukhuset och Institutet gör Hagalund lämpligt för företag inom life science. Granne med området ligger Norra begravningsplatsen vilken är en grön lunga i Solna. En bit bort ligger Hagaparken som är utmärkt för en joggingtur på lunchen.

Kommunikationer

Humlegården Fastigheter kör i egen regi en elbuss som går skytteltrafik mellan Odenplan Hagalund under rusningstid morgon och eftermiddag. Elbussen är gratis för Humlegårdens hyresgäster. Från Odenplan kan även buss 507 tas till Industrivägen i Hagalund. Fler bussalternativ finns. Det går också bra att promenera till pendeltåget vid Solna station eller till tunnelbanestation Solna C. För bilburna är läget perfekt, närheten till E4 och Norra Länken/Essingeleden gör att det bara tar ett par minuter att komma till Stockholm city.

Vill du veta mer om Repslagarevägen 3?

Fyll i dina uppgifter så kontaktar vi dig.

You must agree before submitting.