EN
Kontor

Nybrogatan 17, City

Kontorsdröm i hjärtat av Stockholm

Oscar Mörner

Uthyrning

Skicka e-post
Intresseanmälan

Lokalinformation

Framtidens kontor på Nybrogatan 17 är något alldeles extra. Fastigheten kombinerar toppmodern arkitektur med sekelskiftescharm på ett av stadens absolut bästa lägen. Husets inbjudande lobby och gröna takterrass med storslagen utsikt skapar levande mötesplatser för både arbete och avkoppling. Här blir du en del av ett dynamiskt kvarter med grannar som Östermalmshallen, Dramaten och Stureplan.

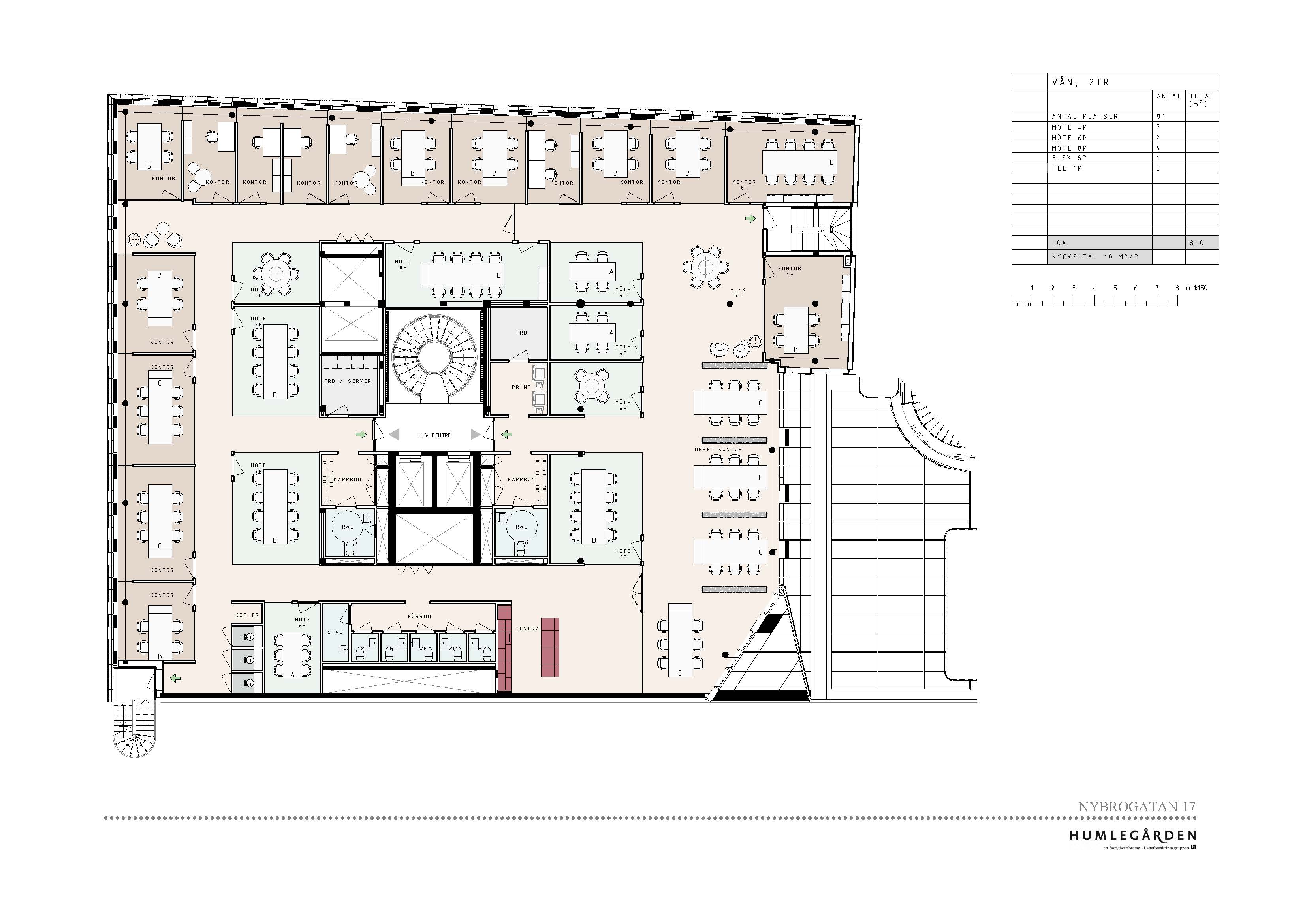
Planlösning

På våning 2 finns en öppen och ljus lokal med fönster från golv till tak samt spektakulär lutande glasfasad. De välplanerade kontorsrummen har plats för 1 6 personer. I lokalen finns även ett öppet kontorslandskap, ett rymligt pentry samt en bra mix av mötesrum i olika storlekar.

Bekvämligheter

  • Omklädningsrum
  • Terrass
  • Cykelrum
  • Restaurang

Fakta om lokalen

Adress: Nybrogatan 17 Byggår: 2019-2020
Area: 810 kvm Område: City
Typ: Kontor Våningsplan: 2
Kommun: Stockholm

Planritning

Området

Service

Din nya arbetsplats har ett guldläge mitt på Stockholms bästa shopping- och restaurangstråk. Med populära lunchrestauranger och ett rikt serviceutbud utanför dörren blir det enkelt att få vardagen att flyta både på och utanför kontoret.

Omgivning

Vägg i vägg med kontorsfastigheten ligger den kulturhistoriska biografen Astoria, som har omvandlats till en ny restaurang i regi av stjärnkrögaren Björn Frantzén. I kvarteret tronar kulturpärlor som Dramaten, Berns och Chinateatern. Och på nära promenadavstånd hittar du grönskande oaser som Humlegården, Berzelii Park och Djurgården.

Kommunikationer

Det ska vara enkelt att ta sig till och från kontoret. Runt Nybrogatan 17 finns alla kommunikationer du kan önska. Välj mellan buss, tunnelbana och båt eller ta cykeln till jobbet. I fastigheten finns både cykelparkering och omklädningsrum med dusch. Vill du ta bilen hittar du flera parkeringsgarage i närheten.

Vill du veta mer om Nybrogatan 17?

Fyll i dina uppgifter så kontaktar vi dig.

You must agree before submitting.